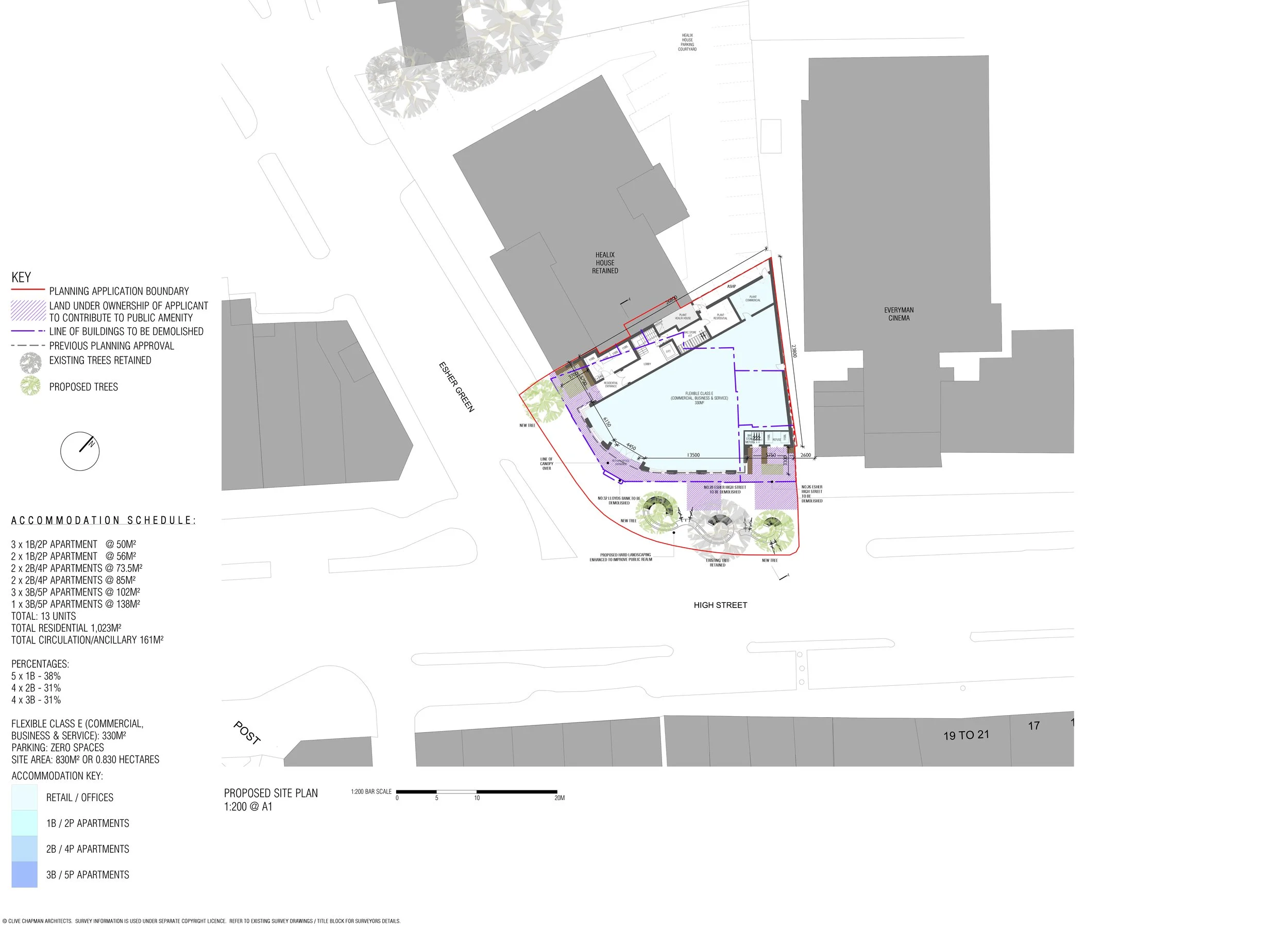
26-32 High Street, Esher

CLIENT  Healix Property LLP

DATES  Full planning permission granted October 2025

In 2022, we achieved planning permission for Office and Retail use on the site. We have now submitted an application for the demolition of existing buildings and construction of 13 residential units with Class E Use (Commercial, Business & Service) on ground floor.

The existing buildings, which these proposals seek to demolish, are from the inter-war period. They suffer from inefficient construction with little or no insulation, single glazed sash windows and old services - the combination of which leads to a significantly higher energy consumption than any new build could conceive.

The proposed building has been designed with an enhanced fabric performance, together with the incorporation of energy generation or saving systems in the form of renewables, that ensures a significant reduction of CO2 emissions, whilst demonstrating compliance with local and regional policies.

Previous
Previous

LAND AT RAILWAY SIDE PASSIVHAUS, BARNES

Next
Next

CRANES PARK, SURBITON