New Inn, Eton Square, Eton

CLIENT  Eton College

DATES  Listed Building Consent April 2024

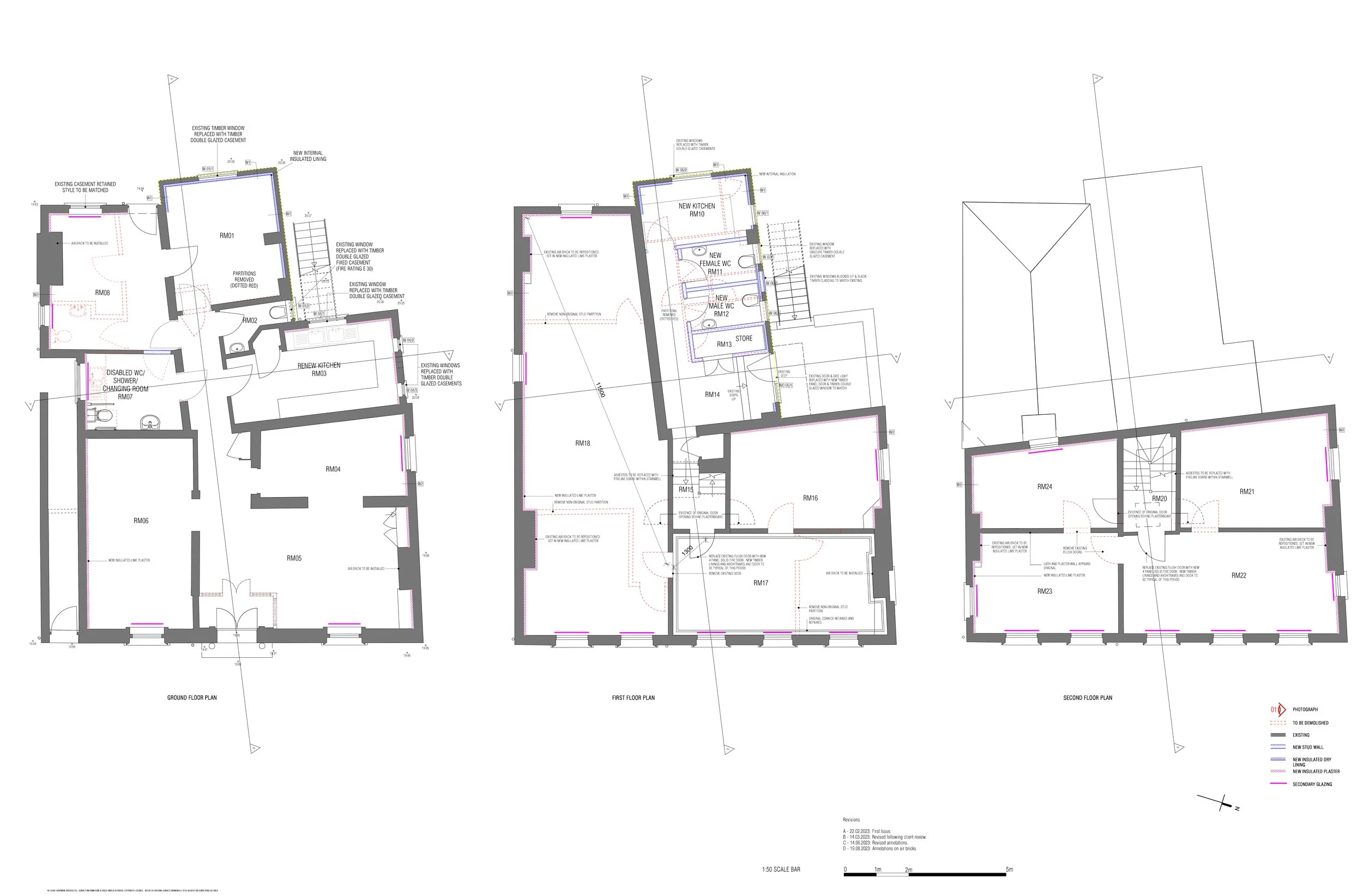
Listed Building Consent, for the refurbishment of New Inn, 51 Eton Square. The building is currently unoccupied with community use at ground floor with self-contained offices at first and second floor. The refurbishment is to enable it to be brought back into use.

Previous
Previous

UPLANDS, HIGH WYCOMBE

Next
Next

HEATH HOUSE, HAMPSTEAD