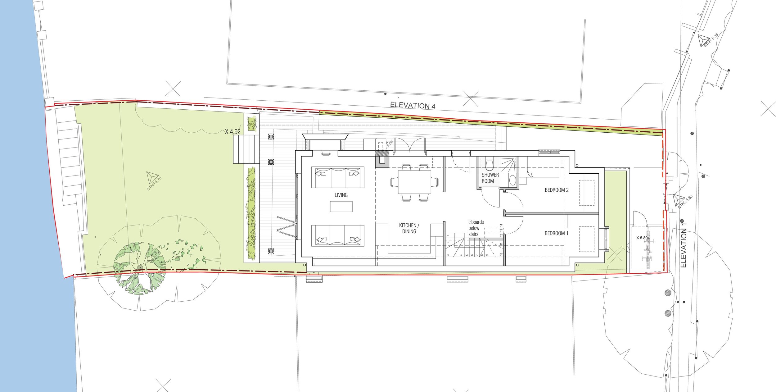
New Build, Flood-Resilient House, Eel Pie Island, Twickenham

CLIENT  Private Client

DATES  Under Construction

Demolition of existing single-storey, three bedroom bungalow in considerable state of disrepair, and construction of a new flood-resilient three bedroom, single-family dwelling, on Eel Pie Island, Twickenham.

The finished floor level will be built high enough to satisfy the requirements of the Environment Agency.

Previous
Previous

CAN-FLOAT HOUSE, WILLOW WAY, CHRISTCHURCH

Next
Next

BROOM WATER WEST, TEDDINGTON